Objektart
Adresse
Objektdaten
Informationen
Ausstattung
Details
3 Raum Wohnung Waldstraßenviertel zum Kauf - Wettiner Straße 9:
Dieses Exposé stellt ein Referenzobjekt von Immaxi Immobilien dar. Es steht leider nicht mehr zum Verkauf/zur Vermietung.
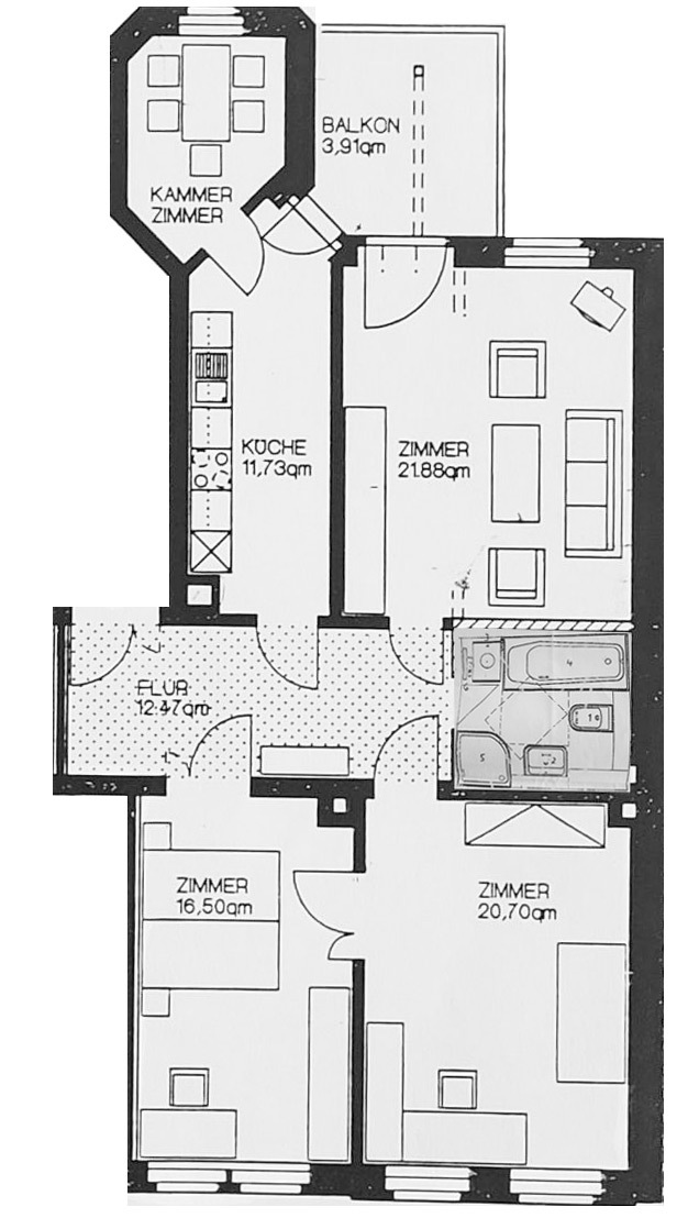
Zum Verkauf steht eine schicke 3,5 Zimmer Wohnung im 3. Obergeschoss (Aufzug vorhanden) einer unter Denkmalschutz stehenden Gründerzeitimmobilie. Das Mehrfamilienhaus wurde im Jahr 1998 umfassend und hochwertig saniert. Alle Wohnungen wurden mit Parkettboden ausgestattet. Der Stuck in den Wohnbereichen wurde restauriert und ist sehr gut erhalten. Im Flur und in den Zimmern ist Eichenparkett verlegt. Das Badezimmer und die Küche sind ansprechend gefliest. Im Badezimmer wurde neben einer Badewanne noch eine Dusche verbaut.
Die Einbauküche, in der auch die Waschmaschine Platz findet, ist im Kaufpreis enthalten. Die Küche verfügt zudem noch über ein Speisezimmer (Kammerzimmer), welches auch als Arbeitszimmer genutzt werden kann. Der von der Küche und vom derzeitigen Schlafzimmer erreichbare Balkon ist überdacht, mit Blick in den grünen, ruhigen Innenhof. Die Wohnung bietet mit den aufgearbeiteten Fußböden, den original Holztüren und den vorhandene Stuckelementen einen besonderen Charme und Altbauflair pur.
Die Immobilie ist vermietet. Die Kaltmiete beträgt seit dem 01.10.2023 EUR 8,22 pro Quadratmeter.
Die monatlichen Vorauszahlungen laut Wirtschaftsplan betragen ab 2024:
Hausgeld EUR 316,14 (davon sind ca. EUR 255 pro Monat als Nebenkosten auf den Mieter umlegbar)
Instandhaltungsrücklage EUR 40,72
Weitere Details gern auf Anfrage.
vermietet, 3,5 Raum Wohnung, Denkmalschutzobjekt, Aufzug, Parkettboden, Stuck , original Flügeltüren/Türen, große Küche, großer Balkon (Südseite) , Kellerraum, grüner Innenhof und vieles mehr.
Weitere Daten zum Objekt gern auf Anfrage.
Bei diesem Objekt handelt es sich um ein Baudenkmal. Ein Energieausweis ist laut Energieeinsparverordnung (EnEV) nicht erforderlich.
Das Waldstraßenviertel (Zentrum-Nordwest) ist heute eines der bekanntesten und schönsten Stadtteile Leipzigs mit teilweise großbürgerlichem Charakter (gut erhaltenen Villen und Mietshäusern im Gründerzeit- und Jugendstil). Die gleichzeitige Nähe zum Park (Rosental) und der Leipziger Innenstadt zeichnet dieses Viertel aus. Die Immobilie liegt unmittelbar am Leipziger Stadtzentrum in einer kleinen Anwohnerstraße. Die Leipziger Innenstadt ist fußläufig erreichbar. Weitere Informationen zum Waldstraßenviertel: www.immaxi.de/waldstrassenviertel
Immaxi Immobilien - Die Immobilienmakler in Leipzig Waldstraßenviertel
Wir konnten diese Immobilie für unsere Kunden erfolgreich vermarkten.
Sind Sie auch Eigentümer einer Immobilie, so können wir Sie sehr gern bei einem Verkauf Ihrer Wohnung/Ihres Hauses unterstützen. Greifen Sie auf unsere Expertise als Marktexperte in Ihrer Region zurück. Gern unterstützen wir Sie im Vorfeld mit einer kostenfreien Wertermittlung für Ihre Immobilie. Profitieren Sie von unserer langjährigen Erfahrung als Immobilienmakler, einem großen Netzwerk, direkten Ansprechpartnern und gute Referenzen.
Haben wir Ihr Interesse geweckt? Kontaktieren Sie uns gern unverbindlich für ein Erstgespräch: TELEFON 0341 2122212
Weitere Details unter: https://www.immaxi.de/immobilie-verkaufen Unser komplettes Angebot an Wohnungen und Häusern zur Miete oder zum Kauf erhalten Sie auf www.immaxi.de
Dieses Exposé stellt ein Referenzobjekt von Immaxi Immobilien dar. Es steht leider nicht mehr zum Verkauf/zur Vermietung.
