ERSTBEZUG NACH SANIERUNG + EUTRITZSCH + 2 RAUM + 3. OBERGESCHOSS + AB SOFORT
Objektart
Adresse
Objektdaten
Informationen
Ausstattung
Details
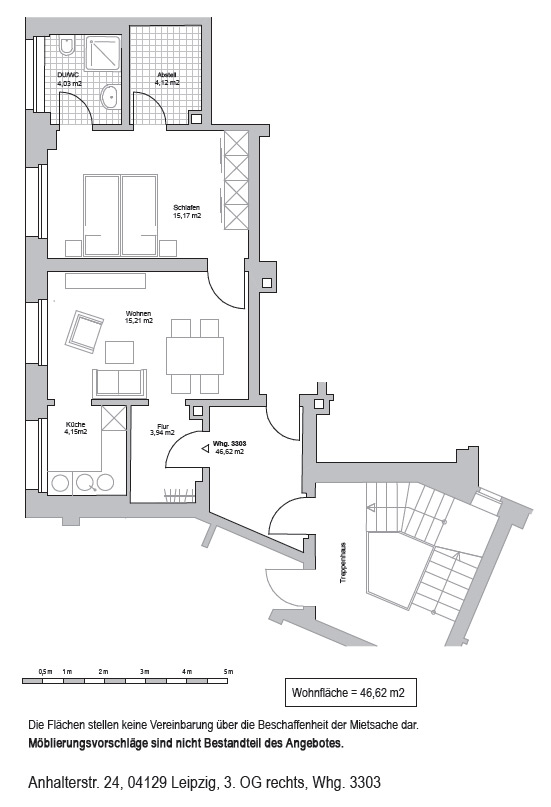
Erstbezug nach Sanierung: 2 Raum Wohnung im 3. Obergeschoss:
Die schicke Wohnung überzeugt durch einen klaren, zeitgemäßen Grundriss. Ein moderner Vinylboden sorgt in allen Wohnräumen für ein einheitliches und pflegeleichtes Erscheinungsbild.
Das Tageslichtbad ist mit Fenster und einer Dusche ausgestattet. Die Waschmaschine findet in der Abstellkammer in der Wohnung platz. Wände und Decken sind glatt verputzt bzw. verspachtelt, die Elektroinstallation ist zeitgemäß mit ausreichend Steckdosen ausgeführt.
Zur Wohnung gehört ein Kellerabteil. Das Gebäude verfügt über keinen Aufzug. Die Lage ist ruhig und wohnlich geprägt.
Frei ab sofort: 2 Raum Wohnung, 3. Obergeschoss, Erstbezug nach Sanierung, Tageslichtbad mit Dusche, moderner Fußboden in Holzoptik, Abstellkammer am Schlafzimmer, Keller, Hausmeisterservice und vieles mehr.
Die Anhalter Straße befindet sich in einer ruhigen, gewachsenen Wohnlage von Leipzig. Das Umfeld ist überwiegend durch Wohnbebauung geprägt und bietet ein angenehmes, urbanes Wohnklima. Einrichtungen des täglichen Bedarfs wie Einkaufsmöglichkeiten, Apotheken und gastronomische Angebote sind im näheren Umfeld vorhanden.
Die Anbindung an den öffentlichen Personennahverkehr ist gut, sodass sowohl die Leipziger Innenstadt als auch weitere Stadtteile schnell und unkompliziert erreichbar sind. Grün- und Erholungsflächen befinden sich ebenfalls in der Umgebung und ergänzen die Wohnqualität. Insgesamt bietet die Lage eine ausgewogene Kombination aus Ruhe, städtischer Infrastruktur und guter Erreichbarkeit. PArkplätze sind vor dem Haus kostenfrei verfügbar.
Immaxi Immobilien - Die Immobilienmakler in Leipzig !
Haben wir Ihr Interesse geweckt? Vereinbaren Sie einen Besichtigungstermin!
TELEFON 0341 2122212
Unter dieser Nummer erreichen Sie unser kompetentes Maklerteam. Wir versuchen einen Termin nach Ihren Wünschen zu realisieren.
Unser komplettes Angebot an Wohnungen und Häusern zur Miete oder zum Kauf erhalten Sie auf www.immaxi.de
Alle Angaben nach bestem Wissen. Irrtum und Zwischenvermitltung vorbehalten. Dieses Exposé ist eine Vorinformation, als Rechtsgrundlage gilt allein der abgeschlossene Kaufvertrag/Mietvertrag.
Energieausweis (Verbrauchsausweis)
80,10 kWh / (m²*a) Energieverbrauchskennwert
80,10 kWh / (m²*a) Energieverbrauchskennwert
80,10 kWh / (m²*a) Energieverbrauchskennwert
Weitere Informationen
| Wesentlicher Energieträger | Kraft-Wärme-Kopplung fossil |
| Energieausweis gültig bis | 2028-04-23 |
| Energieausweis Jahrgang | ab dem 1.5.2014 |
| Energieausweis Werteklasse | C |
| Energieausweis Baujahr | 1936 |
| Energieausweis Gebäudeart | Wohngebäude |
| Heizung | Zentralheizung |
