IN VORBEREITUNG AB JULI 2026 + SCHLEUSSIG + 3 RAUM + EINBAUKÜCHE + HOLZDIELEN
Objektart
Adresse
Objektdaten
Informationen
Ausstattung
Details
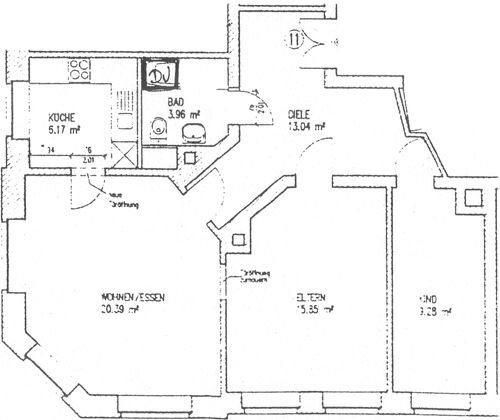
Zur Vermietung steht eine 3 Raum Wohnung in Leipzig Schleußig. Die Wohnung im Eckgebäude der Könneritzstraße 100 verfügt über 3 praktisch geschnittene Wohnräume, sowie ein Bad mit Badewanne und eine vom Wohnzimmer abgehende Küche. Durch die Aufteilung der Wohnräume ist diese Wohnung nur bedingt WG geeignet. Die Wohnung verfügt über eine schicke Einbauküche.
Hinweis: Die Fotos der Wohnung sind älter und nicht aktuell, auf Grund des bewohnten Zustandes.
Ab 01.07.2026: 3 Raum Wohnung im 3. Obergeschoss (kein Aufzug), Holzdielen, Einbauküche im Mietpreis inklusive, Hausmeisterservice und vieles mehr.
Mietpreis wird derzeitig noch mit den Eigentümern abgestimmt.
Schleussig - westlich vom Leipziger Zentrum gelegen und durch umfangreiche städtebauliche Maßnahmen zu einem attraktiven Wohnviertel herangereift, bietet heute alle Voraussetzungen für lebenswertes Wohnen. Die Nähe zum Karl Heine Kanal und den damit verbundenen Wasserwegen sind ebenso reizvoll wie die kurze Entfernung zum Auenwald, diversen Parks und Gärten. Fußläufig erreichen sie diverse Einkaufsmöglichkeiten für den täglichen Bedarf, Schulen und Ärzte. Das Stadtzentrum ist bequem mit den öffentlichen Verkehrsmitteln zu erreichen. (ca. 10 minuten)
Immaxi Immobilien - Die Immobilienmakler in Leipzig !
Haben wir Ihr Interesse geweckt? Vereinbaren Sie einen Besichtigungstermin!
TELEFON 0341 2122212
Unter dieser Nummer erreichen Sie unser kompetentes Maklerteam. Wir versuchen einen Termin nach Ihren Wünschen zu realisieren.
Unser komplettes Angebot an Wohnungen und Häusern zur Miete oder zum Kauf erhalten Sie auf www.immaxi.de
Alle Angaben nach bestem Wissen. Irrtum und Zwischenvermitltung vorbehalten. Dieses Exposé ist eine Vorinformation, als Rechtsgrundlage gilt allein der abgeschlossene Kaufvertrag/Mietvertrag.
