Objektart
Adresse
Objektdaten
Informationen
Ausstattung
Details
3 Raum Wohnung für Eigennutzer | Zentrum Süd | 1. Obergeschoss + Balkon:
Dieses Exposé stellt ein Referenzobjekt von Immaxi Immobilien dar. Es steht leider nicht mehr zum Verkauf/zur Vermietung.
Liebevoll saniertes Mehrfamilienhaus südlich der Leipziger Innenstadt im Stadtteil Zentrum Süd.
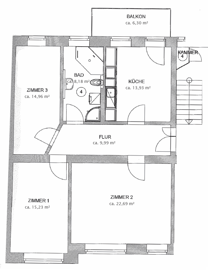
Die Immobilie wurde im Jahr 2006 umfangreich und hochwertig saniert. Zum Verkauf steht eine schicke 3 Raum Wohnung im 1. Obergeschoss (kein Aufzug) mit einem nach Süden ausgerichteten großzügigen Balkon. Die Wohnung besticht durch ihre optimale Aufteilung mit einem praktischen Grundriss. Eine große Wohnküche, sowie ein großes Wohnzimmer bilden den Mittelpunkt der Wohnung. Das Tageslichtbad mit Badewanne, sowie 2 weitere gut geschnittene Zimmer runden die ideale Familienwohnung ab. Zur Wohnung gehört eine kleine Abstellkammer auf halber Treppe, sowie ein Kellerraum. Das Haus bietet im rückwärtigen Bereich einen gepflegten Innenhof mit Platz zum Relaxen, sowie Zugang zum Hinterhaus.
Die Immobilie macht einen gepflegten Eindruck und ist an nette Mieter vermietet. Besichtigungen können nach Absprache mit den Bewohner realisiert werden.
monatliche Kaltmiete: EUR 569,00 (ca. EUR 6,45 pro m²) - noch bis 31.10.2018
monatliches Hausgeld: EUR 195,00 (umlegbar EUR 135,43)
monatliche Instandhaltungsrücklage: EUR 44,00
Instandhaltungsrücklage per 31.12.2017: EUR 93.845 (gesamtes Objekt)
Zentrum Süd/ Südvorstadt, 3 Raum Wohnung - FREI FÜR EIGENNUTZER AB 01.11.2018, 1. Obergeschoss, Südbalkon, Tageslichtbadezimmer mit Badewanne, Parkettboden, Abstellkammer auf halber Treppe, Keller, Hausmeisterservice, grüner Innenhof, ruhige Wohnlage, gepflegter Zustand.
Weitere Details gern auf Anfrage.
Das Leipziger Zentrum Süd, sowie die Südvorstadt sind heute eine der bekanntesten und schönsten Stadtteile Leipzigs mit teilweise großbürgerlichem Charakter (gut erhaltenen Villen und Mietshäusern im Gründerzeit- und Jugendstil). Unweit des Stadtzentrums finden sich hier alle Voraussetzungen für lebenswertes Wohnen. Die begehrte Lage bietet den Auenwald vor der Haustür und kurze Wege in die Innenstadt. Mit den öffentlichen Verkehrsmitteln sind es ca. 7 Minuten bis zum Hauptbahnhof. Weitere Informationen unter www.immaxi.de/suedvorstadt
Immaxi Immobilien - Die Immobilienmakler in Leipzig Zentrum-Süd.
Wir konnten diese Immobilie für unsere Kunden erfolgreich vermarkten.
Sind Sie auch Eigentümer einer Immobilie, so können wir Sie sehr gern bei einem Verkauf Ihrer Wohnung/Ihres Hauses unterstützen. Greifen Sie auf unsere Expertise als Marktexperte in Ihrer Region zurück. Gern unterstützen wir Sie im Vorfeld mit einer kostenfreien Wertermittlung für Ihre Immobilie. Profitieren Sie von unserer langjährigen Erfahrung als Immobilienmakler, einem großen Netzwerk, direkten Ansprechpartnern und gute Referenzen.
Haben wir Ihr Interesse geweckt? Kontaktieren Sie uns gern unverbindlich für ein Erstgespräch: TELEFON 0341 2122212 Weitere Details unter: www.immaxi.de/immobilie-verkaufen Unser komplettes Angebot an Wohnungen und Häusern zur Miete oder zum Kauf erhalten Sie auf www.immaxi.de
Dieses Exposé stellt ein Referenzobjekt von Immaxi Immobilien dar. Es steht leider nicht mehr zum Verkauf/zur Vermietung.
Ansprechpartner
Telefax: 0341 4624922
info@immaxi.de
