Objektart
Adresse
Objektdaten
Informationen
Ausstattung
Details
Reihenendhaus in Markkleeberg zu mieten ab Juli 2026:
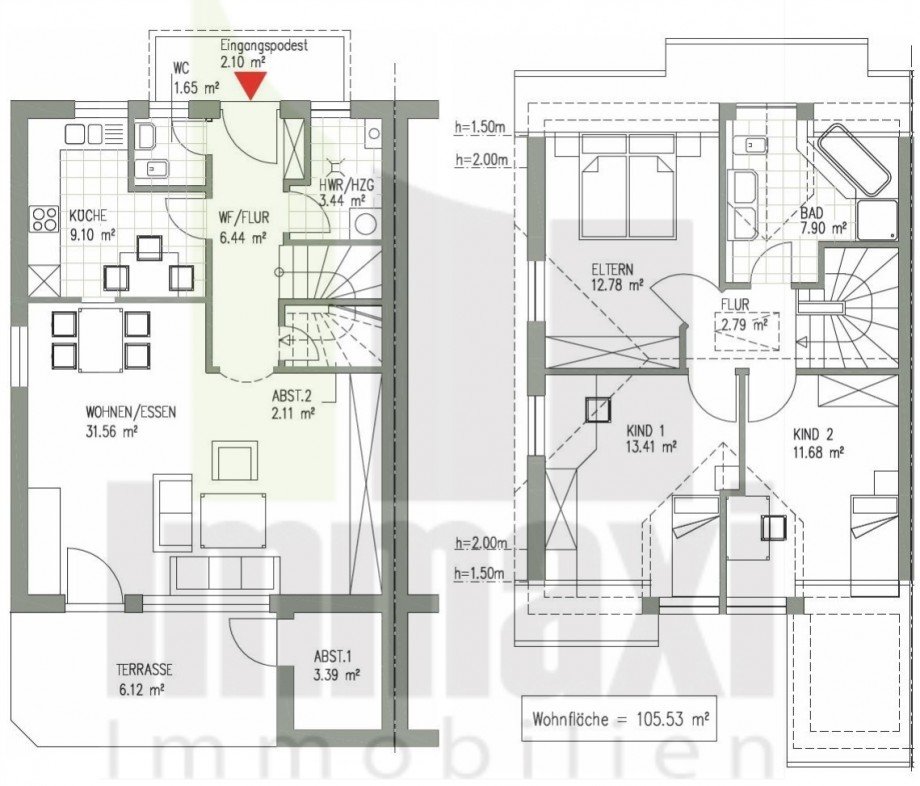
Die Immobilie besteht aus 4 Zimmern verteilt auf 2 Etagen. Im Erdgeschoss befindet sich das Wohnzimmer, die Küche, ein Gäste WC und der Hauswirtschaftsraum. Im Obergeschoss sind 3 weitere Zimmer vorhanden und das Tageslicht Badezimmer mit Wanne und Dusche. Die Immobilie ist nicht unterkellert. Es steht ein PKW Stellplatz vor dem Haus zur Verfügung.
4 Zimmer verteilt auf 2 Etagen, Tageslichtbad + separates Gäste WC, Terrasse mit Garten, Abstellkammer in der Wohnugn, Lamiantboden und vieles mehr.
!!! Verbrauchabhängige Kosten (Strom, Gas, Müllabfuhr) werden separat abgerechnet. Weitere Details gern auf Anfrage.
Markkleeberg - gelegen zwischen dem Cospudener und dem Markkleeberger See. Hier kann man Baden, Surfen oder mit dem Boot unterwegs sein. Dadurch hat diese Lage einen sehr hohen Freizeitwert. Radfahren kann auf gut ausgebauten Radwegen bis nach Leipzig und noch weiter sicher ausgeübt werden. Die S-Bahn ist in 3 Min. zu erreichen. Mit ihr ist man in 15 Min. am Leipziger Hbf. Im Ort befinden sich Geschäfte des täglichen Bedarfs, die man auch zu Fuß erreichen kann.
Immaxi Immobilien - Die Immobilienmakler in Leipzig !
Haben wir Ihr Interesse geweckt? Vereinbaren Sie einen Besichtigungstermin!
TELEFON 0341 2122212
Unter dieser Nummer erreichen Sie unser kompetentes Maklerteam. Wir versuchen einen Termin nach Ihren Wünschen zu realisieren.
Unser komplettes Angebot an Wohnungen und Häusern zur Miete oder zum Kauf erhalten Sie auf www.immaxi.de, mit teilweise noch unveröffentlichten Angeboten bzw. Immobilien die sich im Vorlauf befinden.
Alle Angaben nach bestem Wissen. Irrtum und Zwischenvermitltung vorbehalten. Dieses Exposé ist eine Vorinformation, als Rechtsgrundlage gilt allein der abgeschlossene Kaufvertrag/Mietvertrag.
Energieausweis (Verbrauchsausweis)
110 kWh / (m²*a) Energieverbrauchskennwert
110 kWh / (m²*a) Energieverbrauchskennwert
110 kWh / (m²*a) Energieverbrauchskennwert
Weitere Informationen
| Wesentlicher Energieträger | GAS |
| Energieausweis gültig bis | 2033-11-18 |
| Energieausweis Jahrgang | ab dem 1.5.2014 |
| Energieausweis Baujahr | 1997 |
| Energieausweis Gebäudeart | Wohngebäude |
| Heizung | Zentralheizung |
| Befeuerung | Gas |
