Objektart
Adresse
Objektdaten
Informationen
Ausstattung
Details
Möblierte 2 Raum Wohnung in Zwenkau zur Eigennutzung:
Dieses Exposé stellt ein Referenzobjekt von Immaxi Immobilien dar. Es steht leider nicht mehr zum Verkauf/zur Vermietung.
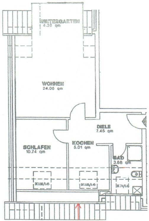
Zum Verkauf steht eine schicke 2 Raum Wohnung im 2. Obergeschoss (kein Aufzug) eines ruhig gelegenen Mehrfamilienhauses Baujahr 1994. Die Immobilie ist nicht vermietet und kann durchaus kurzfristig als Eigennutzer bezogen werden.
Die Wohnung wurde als Ferienwohnung genutzt und ist komplett eingerichtet. Moderne Ausstattung, ein praktischer Schnitt mit großem hellen Wohnbereich, sowie ein PKW Stellplatz runden das positive Gesamtbild der Immobilie ab. Die Eigentumswohnung wird komplett möbliert verkauft. Alle vorhandenen Möbel, sowie die Einbauküche sind im Kaufpreis enthalten. Die Immobilie ist nicht unterkellert. Zur Wohnung gehört allerdings eine Bodenkammer im Dachgeschoss.
Monatliches Hausgeld Wohnung: EUR 240,00 (darin enthalten EUR 61,13 Instandhaltungsrücklage)
Zwenkau: 2 Raum Wohnung 2. Obergeschoss (kein Aufzug), leerstehend, sofort verfügbar, Tageslichtbad mit Dusche, Laminatboden + Fliesen, Bodenkammer, PKW Stellplatz, Fahrradraum, Hausmeisterservice, ruhige Wohnlage, gepflegter Zustand.
Weitere Details zur Wohnung gern auf Anfrage. Ein Energieausweis ist vorhanden und kann eingesehen werden. Besichtigungen sind nach Absprache auch kurzfristig möglich.
Das Mehrfamilienhaus liegt in einer ruhigen Nebenstraße, unweit des Zwenkauer Sees in der Stadt Zwenkau bei Leipzig. Die beliebte Wohngegend in Zwenkau zeichnet sich durch kurze Wege zu den vorhandenen Einkaufsmöglichkeiten aus. Schulen und öffentliche Verkehrsmittel sind ebenfalls sehr gut zu erreichen. Das Kap Zwenkau, sowie der Zwenkauer See sind fußläufig zu erreichen und bieten mit der Lage im Leipziger Neuseenland unzählige Möglichkeiten der Freizeitgestaltung, sowie kurze und gut ausgebaute Anbindungen an die Stadt Leipzig. Auf Grund der unmittelbaren Nähe den umliegenden Seen und der allgemeinen naturnahen Umgebung ist die Wohnlage sehr beliebt.
Immaxi Immobilien - Die Immobilienmakler in Zwenkau.
Wir konnten diese Immobilie für unsere Kunden erfolgreich vermarkten.
Sind Sie auch Eigentümer einer Immobilie, so können wir Sie sehr gern bei einem Verkauf Ihrer Wohnung/Ihres Hauses unterstützen. Greifen Sie auf unsere Expertise als Marktexperte in Ihrer Region zurück. Gern unterstützen wir Sie im Vorfeld mit einer kostenfreien Wertermittlung für Ihre Immobilie. Profitieren Sie von unserer langjährigen Erfahrung als Immobilienmakler, einem großen Netzwerk, direkten Ansprechpartnern und gute Referenzen.
Haben wir Ihr Interesse geweckt? Kontaktieren Sie uns gern unverbindlich für ein Erstgespräch: TELEFON 0341 2122212 Weitere Details unter: www.immaxi.de/immobilie-verkaufen Unser komplettes Angebot an Wohnungen und Häusern zur Miete oder zum Kauf erhalten Sie auf www.immaxi.de
Dieses Exposé stellt ein Referenzobjekt von Immaxi Immobilien dar. Es steht leider nicht mehr zum Verkauf/zur Vermietung.
Energieausweis (Verbrauchsausweis)
115 kWh / (m²*a) Energieverbrauchskennwert
115 kWh / (m²*a) Energieverbrauchskennwert
115 kWh / (m²*a) Energieverbrauchskennwert
Weitere Informationen
| Wesentlicher Energieträger | GAS |
| Energieausweis gültig bis | 2024-10-08 |
| Energieausweis Jahrgang | ab dem 1.5.2014 |
| Energieausweis Baujahr | 1994 |
| Energieausweis Gebäudeart | Wohngebäude |
| Heizung | Zentralheizung |
| Befeuerung | Gas |
